首页
关于我们
业务范围
项目案例
消防知识
联系我们
服务热线:010-57106988
项目案例
项目案例
关于我们
业务范围
消防知识
当前位置:
首页
>
项目案例
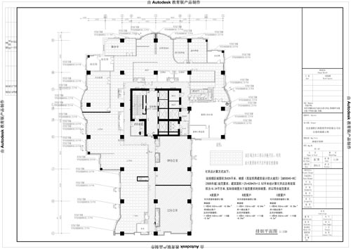
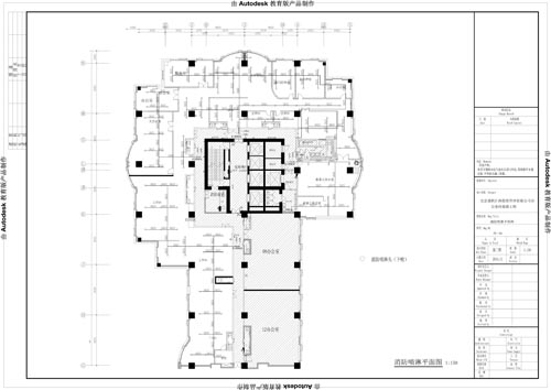
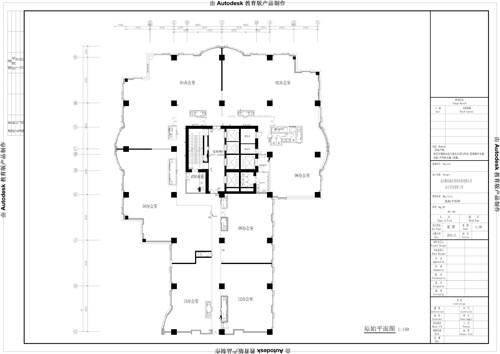
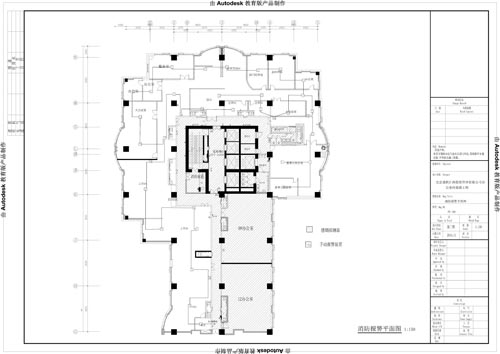
工程名称:
北京盛世汇海投资管理有限公司办公室内装修工程
Navigate
网站导航
业务范围
设计申报手续
开工申报手续
验收申报手续
关于我们
工程案例
消防知识
联系我们
Contact Us
联系方式
地址:北京市海淀区吴家村路6号韩建集团9层
电话:13910785202 13910285839
传真:010-82827740
邮编:100161
calling card
二维码名片
Copyright 2014 © Zetian All Rights Reserved 中景消防